search iconsearch icon
Type something to search...
Comencem un Nou Projecte: Rehabilitació Integral d'una Planta Baixa

Comencem un Nou Projecte: Rehabilitació Integral d'una Planta Baixa

  • 03 setembre, 2021

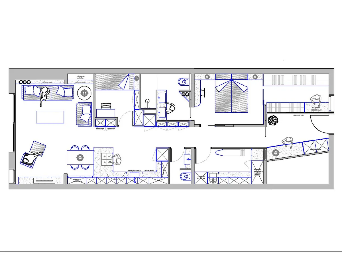
Estem treballant en un nou projecte molt temptador, una rehabilitació integral d’una planta baixa entre mitgeres que ja és la nostra especialitat. El repte de ventilar i il·luminar tot l’habitatge ens farà buscar i pensar solucions imaginatives. Tenim al cap algunes idees brillants per donar resposta a l’encàrrec dels propietaris. Ja anirem informant.

Share :